Webb Branch Ranch

Scroll to Content

Details

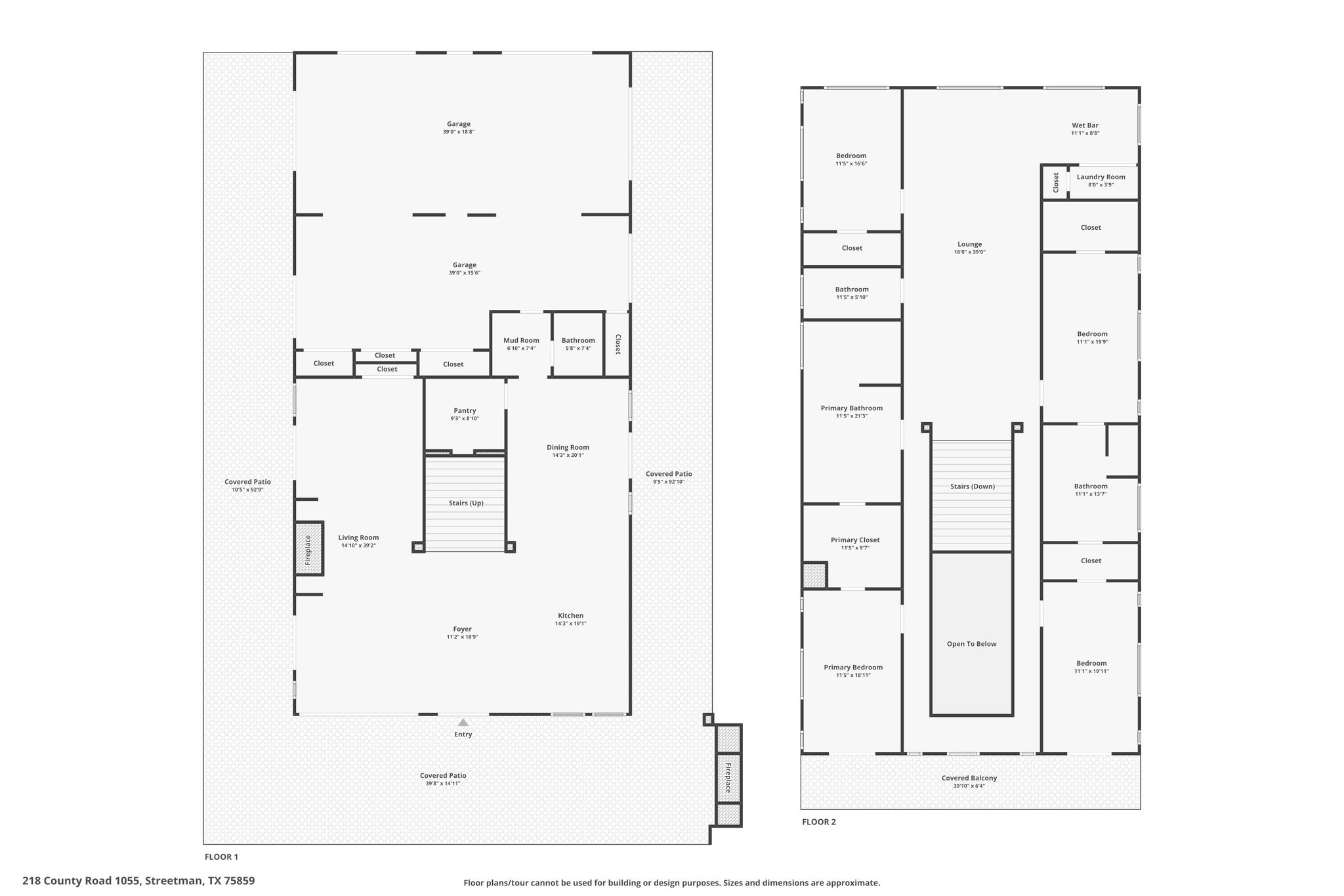
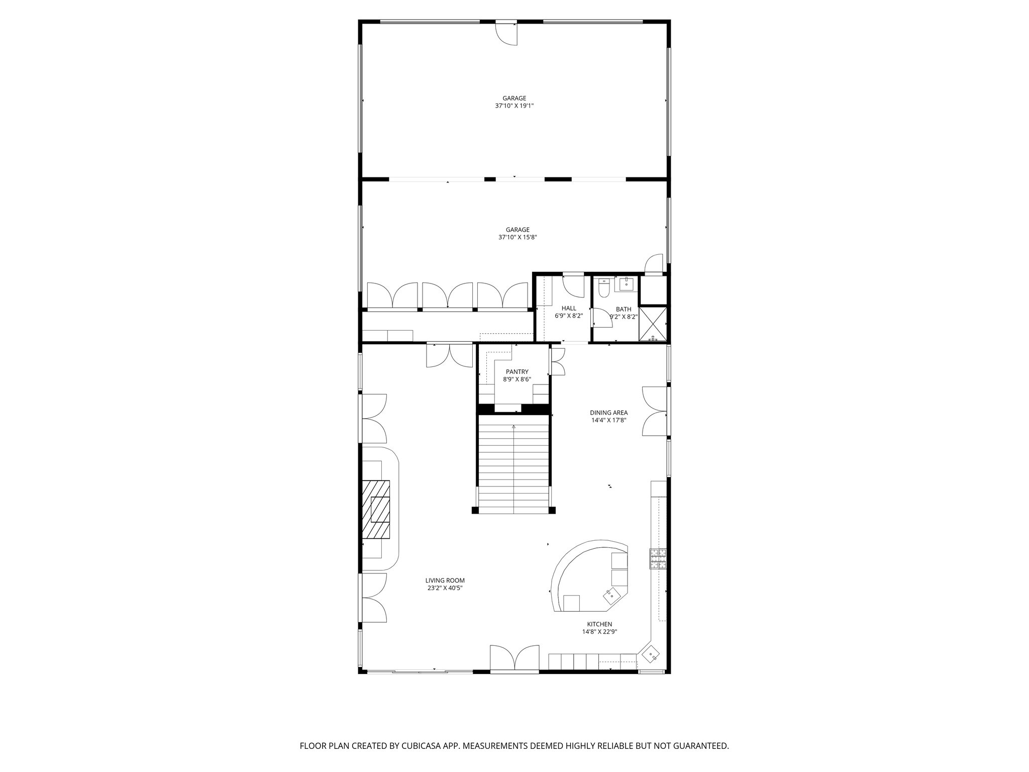
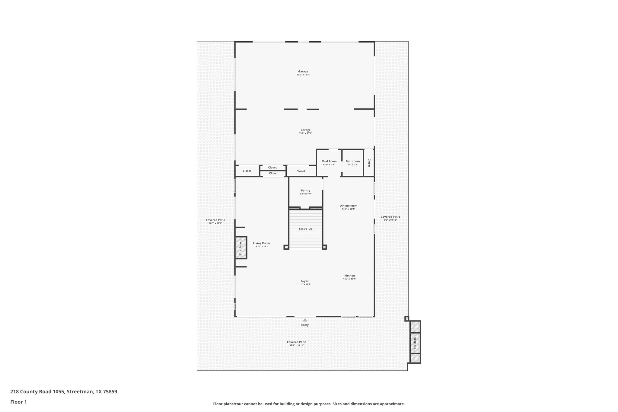
Introducing WEBB BRANCH RANCH, one of Texas's premier wildlife ranches-a dream property that captures the magic of Hill Country design in Central Tx! The primary residence is a stunning custom metal home with stone accents that redefine luxury, complemented by a second custom metal hunting lodge-venue situated on this private wooded acreage. The lodge serves hunters, hosts events, and offers Airbnb potential. Built with passion, purpose, and uncompromising quality, this property offers incredible versatility in a secluded, prestigious location, perfect for wildlife enthusiasts, hunters, and guests alike. The main residence blends timeless elegance with modern sophistication, elite craftsmanship and extensive amenities. Expansive windows and wraparound porches frame panoramic views of the land and abundant wildlife, ensuring privacy. Outdoors enjoy 5 star resort style living with the covered outdoor kitchen, rock FP, dining space or lounge on the spacious sun deck in the heated/cooled pool while enjoying a beverage from the swim up bar. Relax by the gas firepit and allow the sounds of the pool waterfalls to take you away. The hunting lodge-venue was built in 2024. It is 4800 sq ft +/- and offers its own private entry gate, a spacious ballroom, a chef-level kitchen, upstairs private retreats and spa inspired bathrooms for resort level living. The formal and casual living areas are designed for effortless hosting and entertaining. The wall of windows and glass doors offer exspansive, serene views of the exotic wildlife roaming, the meticulously manicured grounds and the views of the lake with fountain. This entire ranch is backed up by generators. The front pasture is divided into 4 deer camps. This prestigious ranch offers complete high fencing and lots of heavy woods for wildlife cover. A true hunter's dream.

  • $12,000,000
  • 4 Bedrooms
  • 3.5 Bathrooms
  • 6,400 Sq/ft
  • Lot 84.08 Acres
  • 2 Parking Spots
  • Built in 2023
  • MLS: 9676765

Images

Videos

Floor Plans

3D Tour